Parker JF302T Level switch
Features Parker JF302T
- Since these products operate regardless of liquid resistance, these products are optimum for control the level of liquids such as clean water, wastewater, saline solution, milk, heavy oil, diesel, cooking oil, etc.
- Not affected by the capacitance between external lead wires and can be operated remotely.
- It can be installed outdoors because a waterproof main body cover is employed.
- Floats for organic solvents such as gasoline, heavy oil, benzene, and alcohol can be manufactured
- Can be used for single-phase and three-phase
Specifications JF302T parker level switch
- Rated contact point capacity: AC250V 10A
- Frequency: 50/60Hz
- Usable control range: 0.18~10M
- Air pressure in the water tank: 1 Atmosphere
- Usable temperature range: 0~120°C
- Float material: SUS 304
- Scope of applicable fluids: Milk, heavy oil, diesel, cooking oil, benzene, alcohol, etc.
Liquid specific gravity table
- Water 1.0
- Seawater 1.01~1.05
- Diesel 0.83~0.88
- Heavy oil 0.85~0.9
Contact point rated capacity JF302T
- AC110~125V: 10A
- AC220~250V : 10A
- AC440~480V : 3A
- AC600V: 2A
The above written rated capacities are values for resistive loads (cos ΓΈ ≒ 1). In the case of inductive loads, the rated capacities may be regarded as 1/2 of the above-written values.
Dimension Parker JF302T
How to use and matters to be attended JF302T float level switch
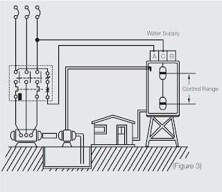
External connection diagram External connection diagram (water supply/three-phase)
- When using for water drainage, use terminal B instead of terminal A
- Ensure that the float would not be shaken by water flows or impacts
- This is suitable for level control that operates regardless of drained liquids’ resistance
- Not affected by external induction or capacitance between wires and easily operated remotely.
Diagram of connection for pump idling prevention, Diagram of connection for pump idling prevention, alarms, and water supply control
- Please use JF-32 type floats at temperatures not exceeding 50°C because they are made of synthetic resins.
- Use JF-302T floats made of a stainless steel rod for high temperatures
Level Switch Parker JF-302T and KASUGA TBL-12 TYPE
Level switch Parker JF-302T merupakan switch untuk pemutus rangkaian dengan pelampung stainless steel dan sensor otomatis untuk cairan berbahan dasar minyak atau oli, seperti: minyak sayur, minyak tanah, minyak sawit, bensin, alkohol, dan cairan lainnya.
- Ideal untuk mengontrol cairan bersifat korosif dengan penggunaan terus menerus ( air limbah, cairan saline, diesel, bahan bakar minyak, susu) .
- Dapat di kontrol tanpa mempengaruhi kapasitas dari kabel induksi external.
- Dapat digunakan untuk 1 phase maupun 3 phase
- Pilihan untuk mengosongkan atau memenuhkan cairan.
Info Selanjutnya silahkan klik : Catalog Parker Float Level switch




Komentar
Posting Komentar
Informasi Pilihan Identitas:
Google/Blogger : Khusus yang punya Account Blogger.
Lainnya : Jika tidak punya account blogger namun punya alamat Blog atau Website.
Anonim :